Erdgeschoss-Wohnung Pfarrgasse 16
3-Zimmer-Wohnung in Offenbach-Bieber — sofort verfügbar, vermietet
Kaufpreis
Wohnfläche
Zimmer
Etage
Exklusive Vorteile
Kaufpreis Inszenierung
Wohnfläche
Verfügbar mit Mieter
Familienviertel OF
Auf einen Blick
Die wichtigsten Fakten
Wohnfläche
Zimmer
Etage
Baujahr
Rendite
Status
Vertrauen & Erfahrung
Zahlen, die überzeugen
Wohnfläche
Zimmer
Rendite p.a.
Kaufpreis
Objektbeschreibung
Warum dieses Objekt?
Diese 3-Zimmer-Wohnung im Erdgeschoss der Pfarrgasse 16 liegt in einer der ruhigsten Ecken von Offenbach-Bieber, einem familiären Stadtteil mit Altbau-Charme und exzellenter Anbindung nach Frankfurt.
Die Wohnung ist aktuell vermietet — ideal für Investoren mit Cashflow-Fokus. Mietverhältnis und Mieteinnahmen sind dokumentiert.
Auch als Teil eines Komplett-Erwerbs des Mehrfamilienhauses interessant: 4 Einheiten (3 Wohnungen + 1 Innenhof-Haus) zusammen mit Preisvorteil verfügbar.
Highlights
Charmanter Altbau mit hoher Zimmerdecke
Familienviertel Offenbach-Bieber — ruhig, grün, S-Bahn-nah
Sicheres Mietverhältnis — sofortiger Cashflow
20 Min. mit der S-Bahn nach Frankfurt HBF
Kompletter Verkauf des MFH möglich (4 WE) — Preisvorteil
Energetische Modernisierung möglich — Wertsteigerungspotenzial
Objektdaten
Im Detail
Für Investoren
Rendite-Übersicht
Brutto-Rendite p.a.
Jahresmieteinnahmen
Miete pro m²
Kaufpreis pro m²
Investment
Warum hier investieren?
Hattersheim am Main bietet ideale Voraussetzungen für eine nachhaltige Kapitalanlage mit attraktiver Rendite.
Sofortiger Cashflow
Vermietet — Sie kaufen ein laufendes Mietverhältnis ohne Leerstand-Risiko
Bieber als Lage
Ruhiger Familienstadtteil von Offenbach mit Altbau-Charme und kurzen Wegen
S-Bahn nach Frankfurt
20 Min. zur Frankfurter Innenstadt — perfekt für Pendler-Mieter
Modernisierungs-Reserve
Energetische Sanierung möglich — Wertsteigerung und höhere Miete erzielbar
Komplett-Kauf möglich
Alle 4 Einheiten der Pfarrgasse 16 zusammen erwerbbar — Preisvorteil
AfA-Vorteil Altbau
Baujahr 1910 — Denkmal-AfA prüfbar, klassisch hohe Steuervorteile
Impressionen
Bildergalerie

Wohnzimmer

Küche

Schlafzimmer

Schlafzimmer 2

Kinderzimmer

Badezimmer

Flur

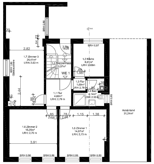
Grundriss EG
Vollständiges Exposé
Alle Details auf einen Blick
Laden Sie das komplette Exposé als PDF — mit allen Fotos, Plänen und der Investment-Kalkulation.
Exposé herunterladen (PDF)Zusammen mit
Unser Netzwerk
Marken, Partner und Kooperationen, die unsere Projekte tragen
Kontakt
Interesse geweckt?
Vereinbaren Sie jetzt Ihren persönlichen Besichtigungstermin. Wir stehen Ihnen für alle Fragen zur Verfügung.
Ihr Ansprechpartner
Ignas Ambrazevicius
Immo A+++ | Delt GmbH



