Dachgeschoss-Wohnung Pfarrgasse 16
Charmante DG-Wohnung in Offenbach-Bieber — Bezugsfrei nach Sanierung
Kaufpreis
Wohnfläche
Zimmer
Etage
Exklusive Vorteile
Kaufpreis
Sofort einziehen
Charme unter dem Dach
Familienviertel OF
Auf einen Blick
Die wichtigsten Fakten
Wohnfläche
Zimmer
Etage
Baujahr
Status
Verfügbar
Vertrauen & Erfahrung
Zahlen, die überzeugen
Wohnfläche
Zimmer
Wartezeit
Kaufpreis
Objektbeschreibung
Warum dieses Objekt?
Die Dachgeschoss-Wohnung der Pfarrgasse 16 ist die einzige der vier Einheiten, die bezugsfrei verfügbar ist — perfekt für Eigennutzer oder Investoren, die selbst die Mietfindung steuern wollen.
Wohnen unter dem Dach mit dem Charme eines 1910er-Altbaus, gleichzeitig Freiheit für eigene Modernisierungen.
Auch als Teil des Komplett-Pakets aller 4 Einheiten der Pfarrgasse 16 verfügbar.
Highlights
Bezugsfrei — sofort einziehen oder neu vermieten
Dachgeschoss — Wohnen unter dem Dach mit Charme
Familienviertel Offenbach-Bieber
20 Min. S-Bahn nach Frankfurt HBF
Eigennutzung oder Vermietung möglich
Renovierungs-Potenzial bei freier Verfügung
Objektdaten
Im Detail
Investment
Warum hier investieren?
Hattersheim am Main bietet ideale Voraussetzungen für eine nachhaltige Kapitalanlage mit attraktiver Rendite.
Bezugsfrei = Flexibilität
Eigennutzung, Neuvermietung mit eigenen Konditionen, oder Modernisierung
Dachgeschoss-Charme
Wohnen unter dem Dach mit Altbau-Atmosphäre
S-Bahn nach Frankfurt
20 Min. zur Frankfurter Innenstadt
Wertsteigerungs-Potenzial
Nach Modernisierung deutlich höherer Mietwert erzielbar
Komplett-Paket möglich
Mit den anderen 3 Einheiten als Sammelkauf günstiger
Altbau-AfA
Steuervorteile durch Erhaltungs- und Modernisierungs-AfA
Impressionen
Bildergalerie

Wohnbereich

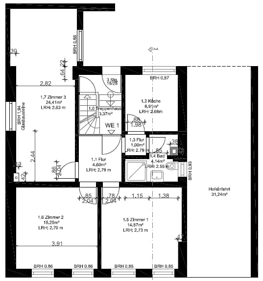
Grundriss DG
Zusammen mit
Unser Netzwerk
Marken, Partner und Kooperationen, die unsere Projekte tragen
Kontakt
Interesse geweckt?
Vereinbaren Sie jetzt Ihren persönlichen Besichtigungstermin. Wir stehen Ihnen für alle Fragen zur Verfügung.
Ihr Ansprechpartner
Ignas Ambrazevicius
Immo A+++ | Delt GmbH



